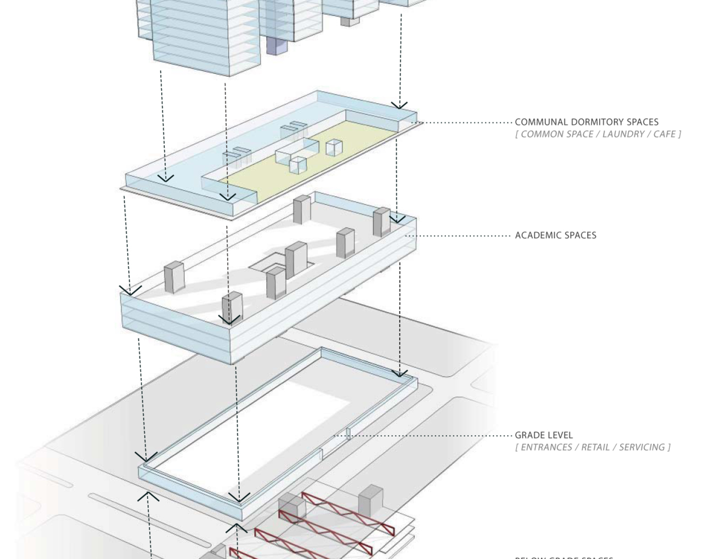
01work:modular
Intrigued by the cost-saving potential of modular construction to solve the urban housing affordability crisis, David began working with a start-up venture, Global Building Modules, Inc, (GBM) in 2005 to pioneer a next-generation system of mid- and high-rise modular architecture. His key insights were that economical transportation using the intermodal shipping system would open global markets, and that the fundamental transferrable value of the intermodal shipping system was in its standardized dimensions for transport rather than the physical recycling of actual shipping containers.
From 2005 to 2008, with $4.5 million in funding, the GBM team plunged into basic research and development leading to technical breakthroughs embodied in a series of patents. Since then, through publications, competitions, and feasibility studies, we’ve continued to advance the concept of “intermodal modular architecture”.
David’s book, The Future of Modular Architecture (New York: Routledge, 2021) is an in-depth treatment of the subject that, perhaps for the first time, puts forward a comprehensive theory of modular architecture based on first principles.



































